Tromostovje Apartments
Apartment Deluxe River View
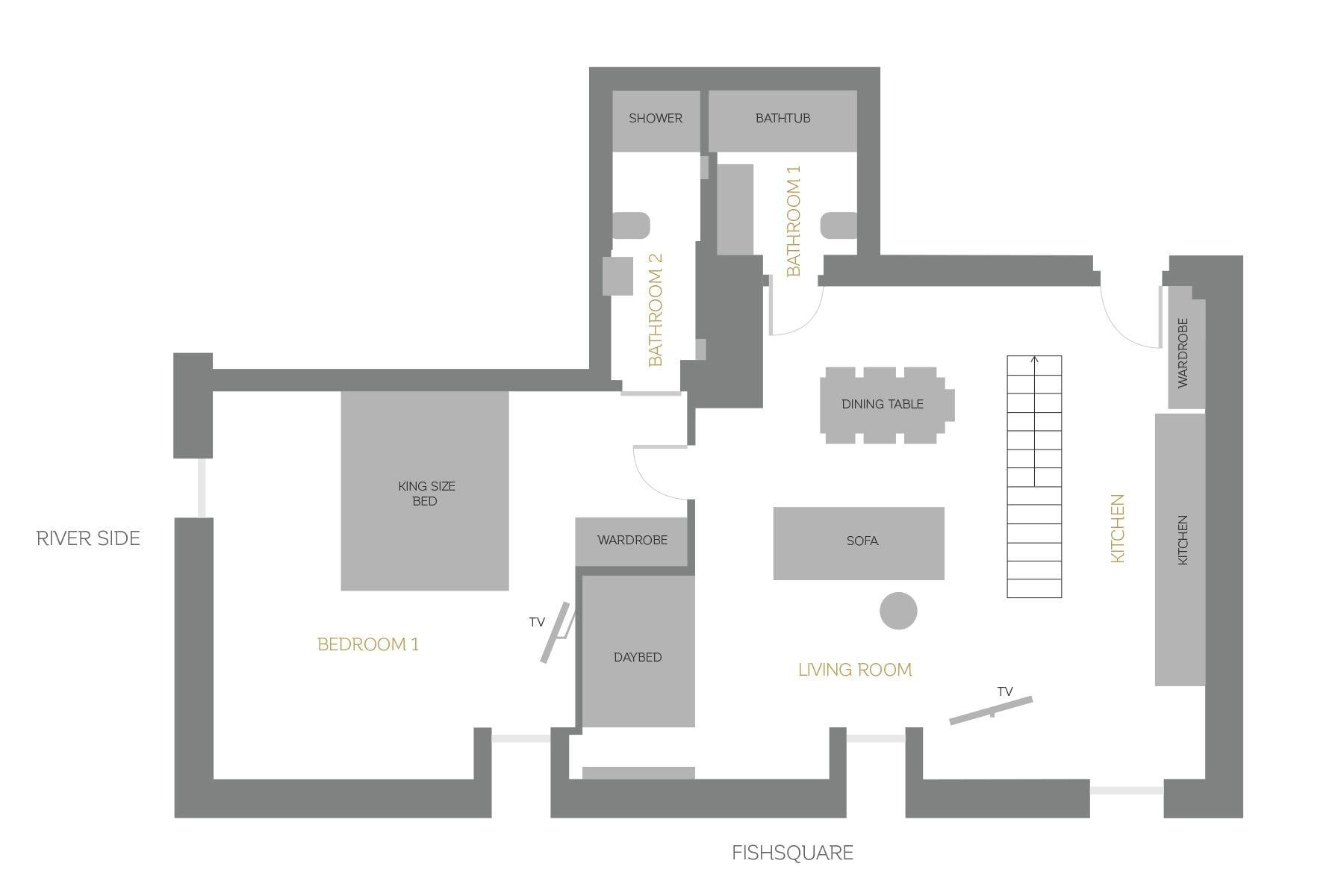
Quadruple Duplex
Studio Superior One Bedroom
Studio River View
Frequently Asked Questions
Free Cancellation: If selected, it allows you the flexibility to cancel your reservation at no cost before the specified deadline. Within the free cancellation period, you can log in to My Account and cancel your booking. Note you can not cancel a booking once it becomes non-refundable.
Non-Refundable Rates: These bookings are charged at the time of reservation and cannot be canceled or amended.
For precise details, please review the cancellation policy and rate conditions during the booking process.
About Tromostovje Apartments
A stay at Tromostovje apartments places you in the heart of Ljubljana, within a 15-minute walk of Ljubljana Castle and Triple Bridge. This hotel is 0. 1 mi (0. 1 km) from Ljubljana Town Hall and 0. 1 mi (0. 1 km) from Robba Fountain. This smoke-free hotel was built in 2017. A roundtrip airport shuttle is provided for a surcharge (available on request), and self parking (subject to charges) is available onsite. Full breakfasts are served on weekdays from 8:00 AM to 11:00 AM and on weekends from 10:00 AM to 1:00 PM for a fee. Make yourself at home in one of the 3 air-conditioned rooms featuring kitchens with full-sized refrigerators/freezers and stovetops. Your room comes with a Select Comfort bed. 100-cm flat-screen televisions with cable programming provide entertainment, while complimentary wireless Internet access keeps you connected. Conveniences include safes and microwaves, and housekeeping is provided daily.
Tromostovje Apartments is located at Cankarjevo Nabrea Je 3, LJUBLJANA 1000 SI
