Bentley's Inn
Double King Size Bed
Double or Twin King Size Bed
Quadruple Executive
Room Two Beds
Twin Standard
Frequently Asked Questions
Free Cancellation: If selected, it allows you the flexibility to cancel your reservation at no cost before the specified deadline. Within the free cancellation period, you can log in to My Account and cancel your booking. Note you can not cancel a booking once it becomes non-refundable.
Non-Refundable Rates: These bookings are charged at the time of reservation and cannot be canceled or amended.
For precise details, please review the cancellation policy and rate conditions during the booking process.
About Bentley's Inn
Bentley's Inn is in the heart of Stratford, within a 5-minute walk of Stratford City Hall and Avon Theatre. This hotel is 0.2 mi (0.4 km) from Studio Theatre and 0.7 mi (1.2 km) from Stratford Perth Museum.
Featured amenities include express check-out and luggage storage. Free self parking is available onsite.
At Bentley's Inn, enjoy a satisfying meal at the restaurant. Wrap up your day with a drink at the bar/lounge.
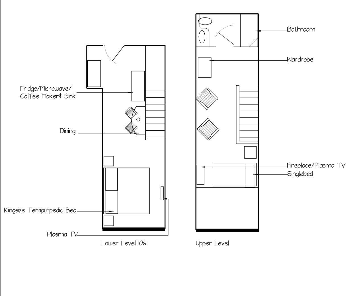
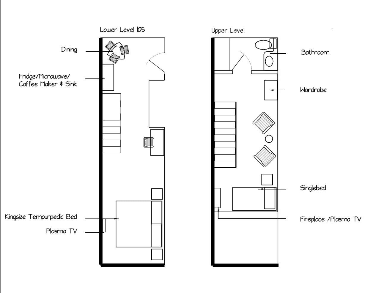
Make yourself at home in one of the 12 air-conditioned rooms featuring fireplaces and plasma televisions. Complimentary wireless Internet access keeps you connected, and cable programming is available for your entertainment. Conveniences include desks and refrigerators, and housekeeping is provided daily.
Bentley's Inn is located at 99 Ontario St, STRATFORD N5A 3H1 CA
